Parkhaus Ostrava



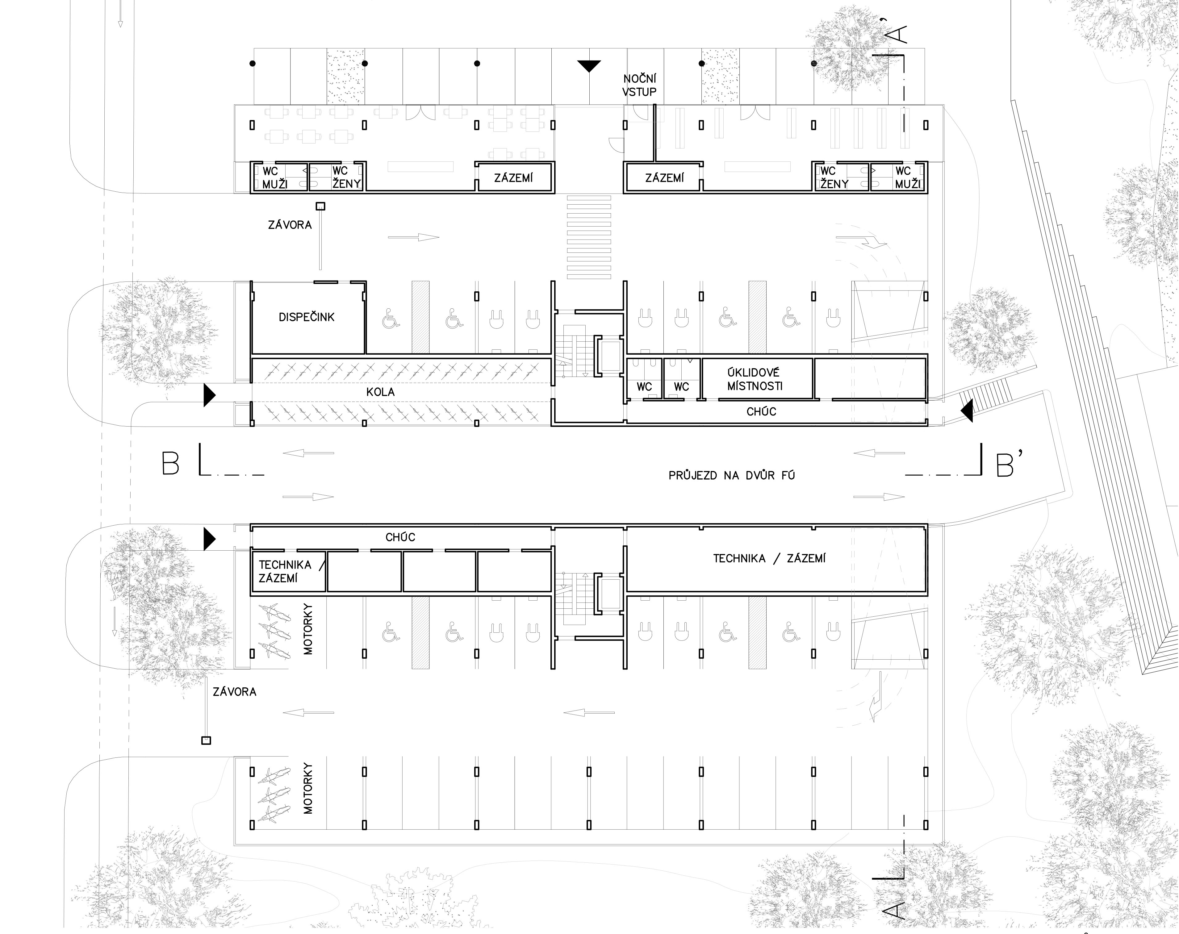
The surrounding context of future parking house is rather difficult. At the moment busy street in terms of traffic aims to become a real city boulevard. Its future highlights should be a new concert hall and university library lying in close proximity. A question if parking house should be next to important boulevards in the 21st century is more than legit. Nevertheless, the proposal is aware of this situation and remains a pragmatic piece of infrastructure. Internal system of parking is open and proven combination of mezzanine floors with oneway ramps that results in minimal floor area. Simultaneously, the parking house gets an elegant symmetrical figure which is projected also on the facades. Overall height corresponds with neighbouring cornices and is lined with intensive greenery (pampas grasss) - imaginary hairy cap. Interior is kept in natural colours of concrete with white highlighting information system.



axonometry










________

in Prague, 2019

together with: Viktor Kákoš and Pavel Mahdal

︎ PROKOP MATĚJ 2026 ︎